Hledáte pronájem bytu v okolí Prahy a zároveň toužíte po přírodě?
Exkluzivně nabízíme k pronájmu příjemný byt 3+kk s prosklenou lodžií, komorou a sklepní kójí ve Zdicích nedaleko Berouna. Bonusem tohoto bytu je jeho umístění – v klidné okrajové části města s nádherným výhledem na protilehlé zalesněné kopce, bezprostředně u městského lesa a zároveň blízko centra města.
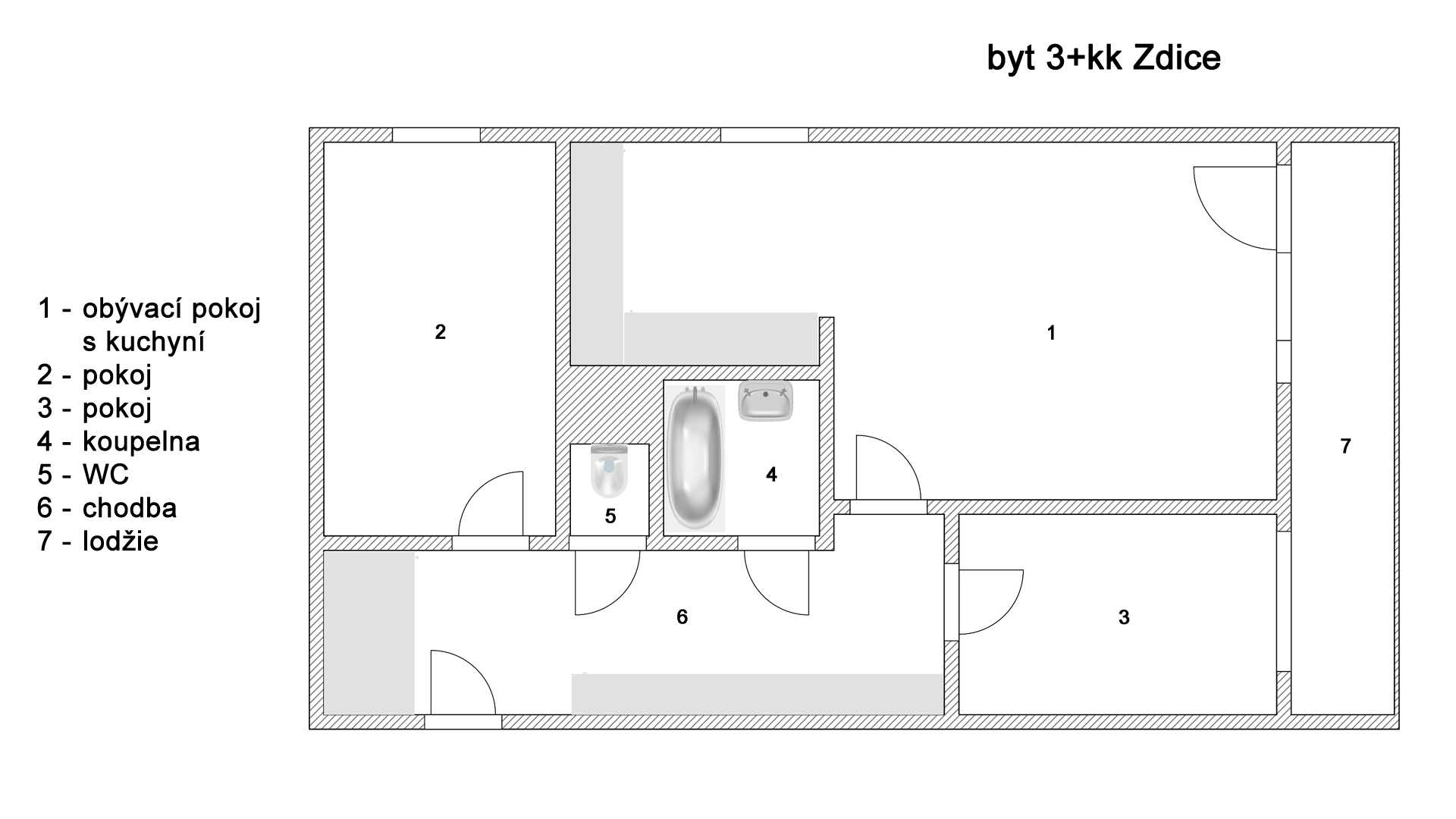
Byt 3+kk o celkové ploše 65 m2 se nachází ve 2. nadzemním podlaží panelového domu. Ten je z části zapuštěný do svahu a v přízemí se nachází technické zázemí domu – vlastní plynová kotelna se sušárnou a sklepní kóje. Náleží k němu také komora (1m2) se samostatným vstupem ze společné chodby a sklepní kóje (3m2).
Byt prošel před časem celkovou rekonstrukcí – má nová plastová okna, vinylovou podlahu, velké úložné prostory v chodbě, nový kuchyňský kout a zrekonstruované původní bytové jádro. Nová je také prosklená lodžie (7m2), které umožňuje zvětšení celého prostoru bytu i v zimních měsících.
Přímo z podlouhlé chodby, kde je zleva velký uzavřený odkládací prostor s regály a po celé délce vpravo se nacházejí šatní skříně, se vstupuje do všech pokojů v bytě. První pokoj je ihned naproti vstupním dveřím a dále z levé strany je sociální zázemí – samostatné WC a koupelna s vanou se zástěnou, umyvadlo a pračka. Na konci chodby vstupujeme do druhého pokoje a dále vlevo se nachází obývací pokoj s velkorysou prosklenou lodžií. Obě místnosti mají okna na jihovýchod a lodžie vás vyloženě láká k posezení s ranní kávou. Na obývací pokoj navazuje kuchyňský kout s vlastním oknem. Je tu lednice, myčka a plynový sporák. Byt je částečně zařízený.
Zdice leží v kotlině mezi křivoklátskými a brdskými lesy a mají přímé spojení na dálnici D5. Město Beroun je vzdálené asi 10 km a na okraji Prahy jste za 30 minut. Naleznete tu veškerou občanskou vybavenost, sportoviště, koupaliště i společenský dům. Zdejší barokní kostel Narození Panny Marie je chráněnou kulturní památkou.
Cena za měsíční pronájem bytu činí 12 000 Kč + poplatky ve výši 5 700 Kč, provize RK činí jeden měsíční nájem + DPH. Kauce je ve výši dvou měsíčních nájmů.
Byt je volný a připravený k nastěhování.
Neváhejte mě kontaktovat a zamluvit si termín a čas prohlídky. Budu se na Vás těšit.

