Dovolujeme si Vám nabídnout útulný byt 2+kk s balkónem v klidné čtvrti Králova Dvora u Berouna. Celý blok domů tvoří nepřehlédnutelnou dominantu v kopci s nádherným výhledem na Český kras i město Beroun.
Byt o celkové ploše 45 m2 se nachází v bytovém domě zkolaudovaném v roce 2009. Náleží k němu také balkón o ploše 5 m2 a sklep. Orientován je na východ. V domě je výtah.
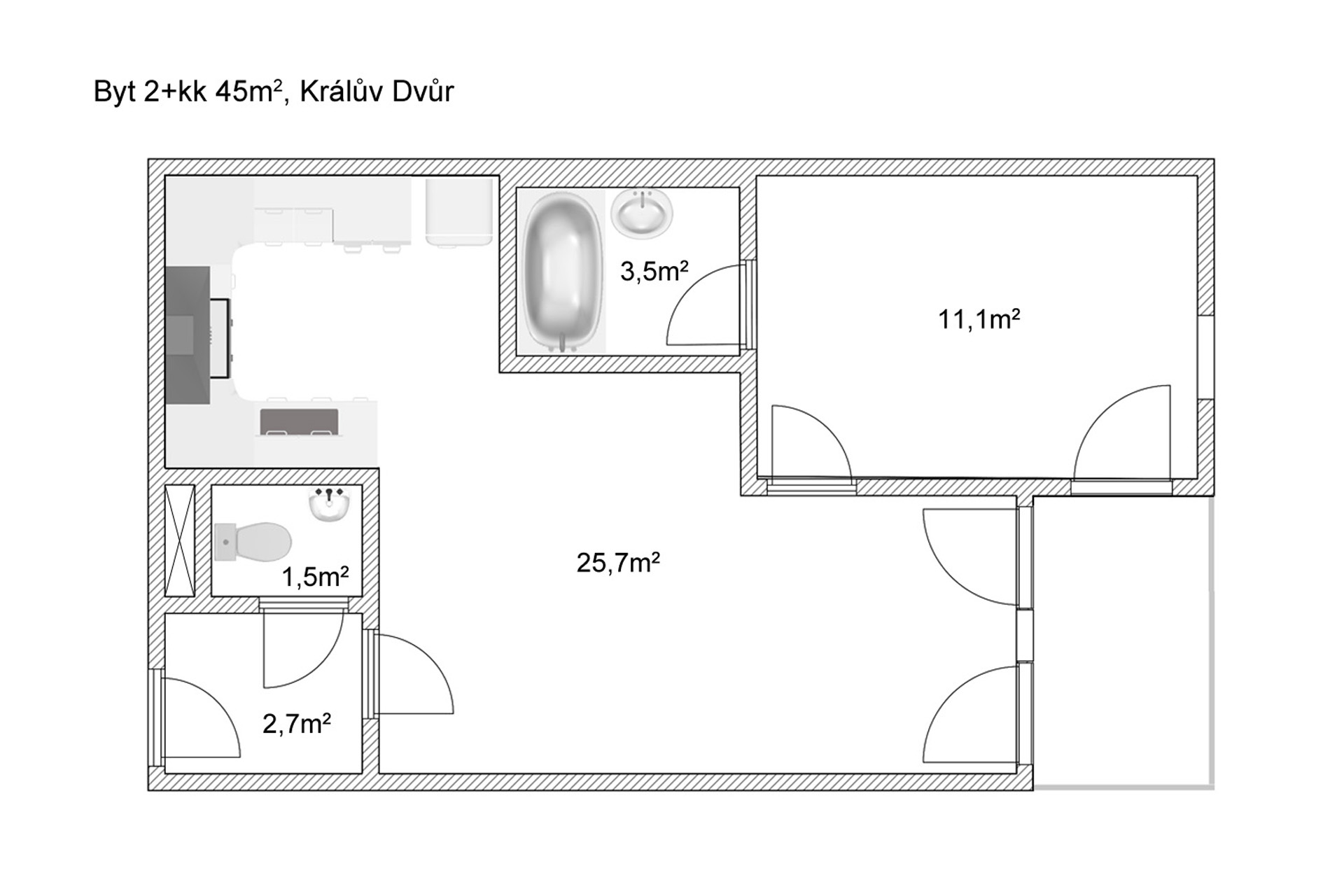
Dispozice:
Z předsíně se vchází do obývacího pokoje spojeného s kuchyňským koutem. Celá jedna stěna pokoje je prosklená a jsou tu vstupní dveře na velkorysý balkón. Z boku pokoje se vchází do ložnice, u které je koupelna s vanou. Také z ložnice je možné vyjít ven na balkón a posadit se k ranní kávě. V kuchyni je na míru postavená kuchyňská linka s vestavěnými spotřebiči a digestoří. Samostatné WC se nachází v zádveří. Na podlaze je plovoucí podlaha, dlažba a v ložnici koberec.
Byt je vyklizený a připravený k nastěhování.
Díky své poloze nabízíme bydlení v klidné části Králova Dvora, u vilové čtvrti plné zeleně a s nedalekými lesy. V blízkosti je obchodní centrum, Poliklinika, MŠ a ZŠ, soukromá ZŠ i nájezd na dálnici D5. Nedaleko je také zastávka autobusů a MHD. Pro milovníky sportu je v blízkosti víceúčelové sportovní centrum. Za kulturou je možné, kromě Králova Dvora, dojet do Berouna, Prahy a nebo se toulat po starobylých památkách v okolí – Karlštejn, Křivoklát, Točník…
Ještě nevíte, kde budete bydlet o Vánocích? Můžete si nadělit nový domov pod stromeček!
Přijďte se podívat a věřím, že právě Vy zde svůj domov naleznete.
Neváhejte mě kontaktovat a zamluvit si termín a čas prohlídky. Budu se na Vás těšit.
